| [C-01-10] 箱型U字側溝・側溝蓋・集水桝 |
| ライン名/アイテム名 | 画像 | 説明 | ダウンロード |
落蓋式側溝・蓋 箱型U字側溝(防音・可変・土留め) |  | ![]() | 一般的な問題点である防音・集水機能・コスト削減・可変勾配・バリアフリーをすべて解消したU字側溝です。 | カタログPDF 図面データ 図面データ2 |
| [C-01-15] 箱型U字側溝・集水桝 布設標準構造図(参考資料) |
| ライン名/アイテム名 | 画像 | 説明 | ダウンロード |
落蓋式側溝・蓋 箱型U字側溝(防音・可変・土留め) |  | ![]() | 布設標準構造図(参考資料) | カタログPDF 図面データ 図面データ2 |
| [C-01-20] 箱型U字側溝・集水桝 断面図(参考資料) |
| ライン名/アイテム名 | 画像 | 説明 | ダウンロード |
落蓋式側溝・蓋 箱型U字側溝(防音・可変・土留め) |  | ![]() | 断面図(参考資料) | カタログPDF 図面データ 図面データ2 |
| [C-01-25] 箱型U字側溝 側溝蓋・集水桝 街渠スリットタイプ(防草タイプ) |
| ライン名/アイテム名 | 画像 | 説明 | ダウンロード |
落蓋式側溝・蓋 箱型U字側溝(防音・可変・土留め) |  | ![]() | 水路幅のサイズが変化してもエプロン幅、境界ブロックの通りが変わらず施工できます。専用桝もあります。 | カタログPDF 図面データ 図面データ2 |
| [C-01-30] 箱型U字側溝 集水桝 街渠スリットタイプ(防草タイプ)布設標準構造図(参考資料) |
| ライン名/アイテム名 | 画像 | 説明 | ダウンロード |
落蓋式側溝・蓋 箱型U字側溝(防音・可変・土留め) |  | ![]() | 布設標準構造図(参考資料) | カタログPDF 図面データ 図面データ2 |
| [C-01-35] 箱型U字側溝 集水桝 街渠スリットタイプ(防草タイプ) 断面図(参考資料) |
| ライン名/アイテム名 | 画像 | 説明 | ダウンロード |
落蓋式側溝・蓋 箱型U字側溝(防音・可変・土留め) |  | ![]() | 断面図(参考資料) | カタログPDF 図面データ 図面データ2 |
| [C-01-40] 箱型U字側溝 暗渠タイプ |
| ライン名/アイテム名 | 画像 | 説明 | ダウンロード |
落蓋式側溝・蓋 箱型U字側溝(防音・可変・土留め) |  | ![]() | 側溝と暗渠に集水桝を設けず直接施工することができます。また、敷板を使用することで工期の短縮が可能です。 | カタログPDF 図面データ 図面データ2 |
| [C-01-45] 箱型U字側溝 土留め用底版 |
| ライン名/アイテム名 | 画像 | 説明 | ダウンロード |
落蓋式側溝・蓋 箱型U字側溝(防音・可変・土留め) |  | ![]() | 車道と民地など高低差がある場合に側溝本体の転倒防止用として使用します。 | カタログPDF 図面データ 図面データ2 |
| [C-01-50] 箱型U字側溝 土留め用底版 布設標準構造図(参考資料) |
| ライン名/アイテム名 | 画像 | 説明 | ダウンロード |
落蓋式側溝・蓋 箱型U字側溝(防音・可変・土留め) |  | ![]() | 布設標準構造図(参考資料) | カタログPDF 図面データ 図面データ2 |
| [C-01-60] 箱型U字側溝 横断タイプ(T-25横断) |
| ライン名/アイテム名 | 画像 | 説明 | ダウンロード |
落蓋式側溝・蓋 箱型U字側溝(防音・可変・土留め) |  | ![]() | 箱型U字側溝の車両横断部に使用する側溝です。グレーチングタイプとトライポットタイプがあります。 | カタログPDF 図面データ 図面データ2 |
| [C-02-10] 長尺U字溝 [KUS・KUR] |
| ライン名/アイテム名 | 画像 | 説明 | ダウンロード |
落蓋式側溝・蓋 長尺U字溝(KUS・KUR) |  | ![]() | 茨城県規格製品です。
道路の歩道及び車道に平行して設置される落ちふた式U形側溝です。 | カタログPDF 図面データ 図面データ2 |
| [C-02-20] 長尺U字溝[KUS・KUR] 製品断面図(参考資料) |
| ライン名/アイテム名 | 画像 | 説明 | ダウンロード |
落蓋式側溝・蓋 長尺U字溝(KUS・KUR) |  | ![]() | 製品断面図((茨城県規格) | カタログPDF 図面データ 図面データ2 |
| [C-02-40] 長尺U字溝[KUS・KUR]布設標準構造図(参考資料) |
| ライン名/アイテム名 | 画像 | 説明 | ダウンロード |
落蓋式側溝・蓋 長尺U字溝(KUS・KUR) |  | ![]() | 布設標準構造図(参考資料) | カタログPDF 図面データ 図面データ2 |
| [C-03-10] 深溝U字溝 [KDS・KDR] |
| ライン名/アイテム名 | 画像 | 説明 | ダウンロード |
落蓋式側溝・蓋 深溝U字溝(KDS・KDR) |  | ![]() | 茨城県規格製品です。
道路の歩道及び車道に平行して設置される深型の落ち
ふた式U形側溝です。 | カタログPDF 図面データ 図面データ2 |
| [C-03-15] 深溝U字溝[KDS・KDR]製品断面図(参考資料) |
| ライン名/アイテム名 | 画像 | 説明 | ダウンロード |
落蓋式側溝・蓋 深溝U字溝(KDS・KDR) |  | ![]() | 製品断面図(参考資料)
| カタログPDF 図面データ 図面データ2 |
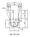
| [C-03-20] 深溝U字側溝[KDS・KDR] 布設標準構造図(参考資料) |
| ライン名/アイテム名 | 画像 | 説明 | ダウンロード |
落蓋式側溝・蓋 深溝U字溝(KDS・KDR) |  | ![]() | 布設標準構造図(参考資料) | カタログPDF 図面データ 図面データ2 |
| [C-04-10] 側溝蓋[IS・IR・ISL・IRL] |
| ライン名/アイテム名 | 画像 | 説明 | ダウンロード |
落蓋式側溝・蓋 側溝用蓋(IS・IR・ISL・IRL) |  | ![]() | 茨城県規格製品です。
道路の歩道及び車道に平行して設置される長尺U字溝・深溝U字溝用の蓋です。
| カタログPDF 図面データ 図面データ2 |
| [C-04-20] 長尺U字溝用グレーチング・長尺U字溝グレーチング用盗難防止金具 |
| ライン名/アイテム名 | 画像 | 説明 | ダウンロード |
落蓋式側溝・蓋 側溝用蓋(IS・IR・ISL・IRL) |  | ![]() | 長尺U字側溝用のグレーチン(茨城県型)です。
盗難防止金具があります。 | カタログPDF 図面データ 図面データ2 |
| [C-05-10] 長尺U横断溝[グレーチング式ボルト固定型]・長尺Uトライポット式横断溝 |
| ライン名/アイテム名 | 画像 | 説明 | ダウンロード |
落蓋式側溝・蓋 長尺U横断溝 |  | ![]() | 長尺U字溝[KUR]の車両横断部に使用するT-25横断専用の横断溝です。 | カタログPDF 図面データ 図面データ2 |
| [C-05-20] 長尺U横断溝 天端勾配型(5%・9%) |
| ライン名/アイテム名 | 画像 | 説明 | ダウンロード |
落蓋式側溝・蓋 長尺U横断溝 |  | ![]() | 道路縦断勾配の傾斜が大きい場所に使用するT-25横断専用のグレーチング付きボルト固定型横断溝です。
| カタログPDF 図面データ 図面データ2 |
| [C-05-30] 長尺U横断溝 天端勾配型(5%・9%) 断面図(参考資料) |
| ライン名/アイテム名 | 画像 | 説明 | ダウンロード |
落蓋式側溝・蓋 長尺U横断溝 |  | ![]() | 断面図(参考資料) | カタログPDF 図面データ 図面データ2 |
| [C-06-10] アイドレーン側溝 |
| ライン名/アイテム名 | 画像 | 説明 | ダウンロード |
落蓋式側溝・蓋 オリジナル側溝(落蓋式) |  | ![]() | 現場にて据付後に底版にインバートコンクリートを打設することにより、排水勾配を自由に設定できる側溝です。
| カタログPDF 図面データ 図面データ2 |
| [C-06-20] アイドレーン側溝 布設標準構造図(参考資料) |
| ライン名/アイテム名 | 画像 | 説明 | ダウンロード |
落蓋式側溝・蓋 オリジナル側溝(落蓋式) |  | ![]() | 布設標準構造図(参考資料) | カタログPDF 図面データ 図面データ2 |
| [C-06-30] アイドレーン側溝 製品断面図(参考資料) |
| ライン名/アイテム名 | 画像 | 説明 | ダウンロード |
落蓋式側溝・蓋 オリジナル側溝(落蓋式) |  | ![]() | 製品断面図(参考資料)
| カタログPDF 図面データ 図面データ2 |