|
集水桝・街渠桝
| [F-01-10] TY集水桝 [底付・底無し] |
| ライン名/アイテム名 | 画像 | 説明 | ダウンロード |
集水桝・街渠桝 TY集水桝 |  | ![]() | 雨水及び側溝の排水を集水する為の集水桝です。
底付と底無しタイプ及び壁厚150・200mmがあります。 | カタログPDF 図面データ 図面データ2 |
| [F-01-15] TY集水桝[底付・底無し] 断面図(参考資料) |
| ライン名/アイテム名 | 画像 | 説明 | ダウンロード |
集水桝・街渠桝 TY集水桝 |  | ![]() | 断面図(参考資料)
・グレーチングタイプ(底付)(底無し)
・トライポットタイプ(底付)(底無し) | カタログPDF 図面データ 図面データ2 |
| [F-01-20] 集水桝 1000×1000 |
| ライン名/アイテム名 | 画像 | 説明 | ダウンロード |
集水桝・街渠桝 TY集水桝 |  | ![]() | 雨水及び側溝の排水を集水する為の集水桝です。 | カタログPDF 図面データ 図面データ2 |
| [F-01-25] 集水桝 1000×1000 布設標準構造図(参考図) |
| ライン名/アイテム名 | 画像 | 説明 | ダウンロード |
集水桝・街渠桝 TY集水桝 |  | ![]() | 布設標準構造図(参考図) | カタログPDF 図面データ 図面データ2 |
| [F-01-30] TY集水桝[底付・底無し] 布設標準構造図(参考資料) |
| ライン名/アイテム名 | 画像 | 説明 | ダウンロード |
集水桝・街渠桝 TY集水桝 |  | ![]() | 布設標準構造図(参考資料) | カタログPDF 図面データ 図面データ2 |
| [F-02-10] マルチフィット集水桝 |
| ライン名/アイテム名 | 画像 | 説明 | ダウンロード |
集水桝・街渠桝 マルチフィット集水桝 |  | ![]() | 雨水及び側溝の排水を集水する為の集水桝です。 | カタログPDF 図面データ 図面データ2 |
| [F-02-15] マルチフィット集水桝 布設標準構造図(参考資料) |
| ライン名/アイテム名 | 画像 | 説明 | ダウンロード |
集水桝・街渠桝 マルチフィット集水桝 |  | ![]() | 布設標準構造図(参考資料) | カタログPDF 図面データ 図面データ2 |
| [F-03-10] L形街渠桝 300×400×1000(底無し)[L形側溝250B用・300用] |
| ライン名/アイテム名 | 画像 | 説明 | ダウンロード |
集水桝・街渠桝 L形街渠桝・L形縁塊 |  | ![]() | L形側溝250B及び300の専用街渠桝(底無し)です。
| カタログPDF 図面データ 図面データ2 |
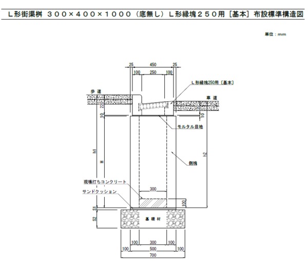
| [F-03-15] L形街渠桝 300×400×1000(底無し)[L形側溝250用・300用]布設標準構造図(参考資料) |
| ライン名/アイテム名 | 画像 | 説明 | ダウンロード |
集水桝・街渠桝 L形街渠桝・L形縁塊 |  | ![]() | 布設標準構造図(参考資料) | カタログPDF 図面データ 図面データ2 |
| [F-03-20] L形街渠桝 350×400 A型(L形エプロンブロックA用) |
| ライン名/アイテム名 | 画像 | 説明 | ダウンロード |
集水桝・街渠桝 L形街渠桝・L形縁塊 |  | ![]() | L形エプロンブロックAの専用街渠桝です。 | カタログPDF 図面データ 図面データ2 |
| [F-03-30] L形街渠桝 350×400 B型(L形エプロンブロックB用) |
| ライン名/アイテム名 | 画像 | 説明 | ダウンロード |
集水桝・街渠桝 L形街渠桝・L形縁塊 |  | ![]() | L形エプロンブロックBの専用街渠桝です。 | カタログPDF 図面データ 図面データ2 |
| [F-03-40] L形街渠桝 350×400(分割式) |
| ライン名/アイテム名 | 画像 | 説明 | ダウンロード |
集水桝・街渠桝 L形街渠桝・L形縁塊 |  | ![]() | L形街渠を現場打ちする場合に用いられる縁塊と底塊に2分割した街渠桝です。
| カタログPDF 図面データ 図面データ2 |
| [F-03-50] L形街渠桝 350×500(街渠エプロンブロック用) |
| ライン名/アイテム名 | 画像 | 説明 | ダウンロード |
集水桝・街渠桝 L形街渠桝・L形縁塊 |  | ![]() | 街渠エプロンブロックの専用街渠桝です。 | カタログPDF 図面データ 図面データ2 |
| [F-03-60] L形縁塊[国土交通省Ⅰ型新・Ⅱ型]・国土交通省D桝300用 |
| ライン名/アイテム名 | 画像 | 説明 | ダウンロード |
集水桝・街渠桝 L形街渠桝・L形縁塊 |  | ![]() | 国土交通省型の排水性舗装対応のL形縁塊と集水桝です。
D桝は下部桝として使用します。 | カタログPDF 図面データ 図面データ2 |
| [F-03-65] L形縁塊[国土交通省Ⅰ型新・Ⅱ型]・国土交通省D桝300用 布設標準構造図(参考資料) |
| ライン名/アイテム名 | 画像 | 説明 | ダウンロード |
集水桝・街渠桝 L形街渠桝・L形縁塊 |  | ![]() | 布設標準構造図(参考資料) | カタログPDF 図面データ 図面データ2 |
| [F-04-10] ため桝・改良桝 |
| ライン名/アイテム名 | 画像 | 説明 | ダウンロード |
集水桝・街渠桝 ため桝・改良桝 |  | ![]() | 民地等の雨水排水用の集水桝と高さ調整用の改良桝です。
車両等の輪荷重がかからない場所に使用してください
。 | カタログPDF 図面データ 図面データ2 |
| [F-05-10] DC-S桝[切土部路肩集水桝] |
| ライン名/アイテム名 | 画像 | 説明 | ダウンロード |
集水桝・街渠桝 オリジナル集水桝 |  | ![]() | 高速道路等の切り土部肩用集水桝となります。
高さ1700以上は2分割対応になります。
| カタログPDF 図面データ 図面データ2 |
|
|
|
茨城県のコンクリート二次製品,道路用製品:東洋コンクリート工業株式会社
〒 311-3125茨城県東茨城郡茨城町下石崎1061番地2
TEL 029-240-8866 FAX 029-240-8861
|